河辺駅前ビル|建込み・マンション・1棟貸し・リビング・駐車場・屋上・24時間|東京青梅市

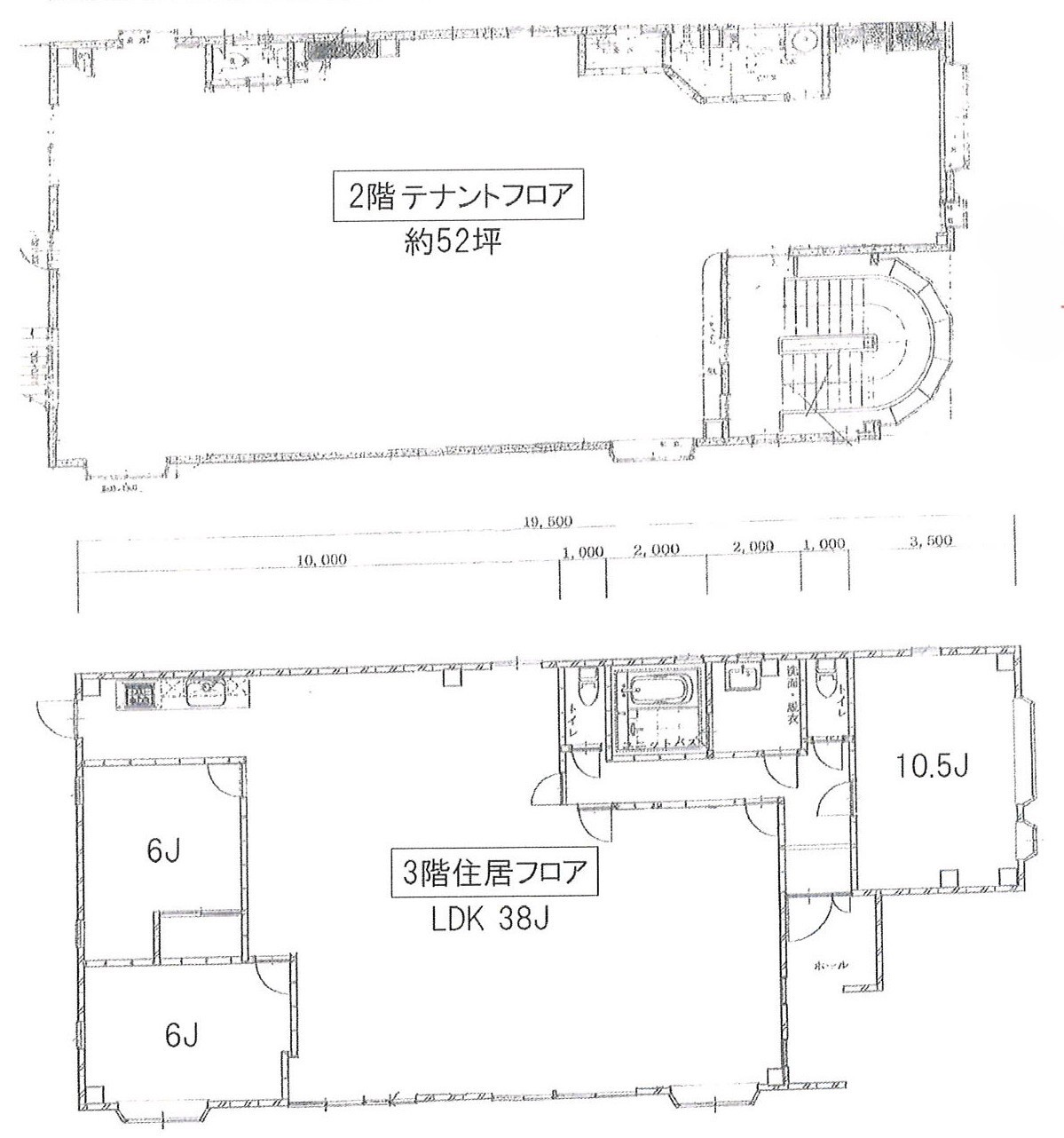
建て込み自由な空テナント&3LDKマンション一棟貸ビル。 1F駐車場、2Fテナントフロア52坪、3F住居フロア3LDK 。リビング38帖を多目的なシーンで撮影利用可能。。屋上の利用可能。365日24時間OK!

  • 急なロケ
  • 24時間
  • 早朝撮影
  • 深夜撮影
  • 土日撮影
  • PR割引
  • 内容制限なし
  • 殺陣・特殊撮影
  • グラビア
  • 駐車場完備
  • 控室完備
お問い合わせ 090-4705-6757
FAX
MAIL seiwalocations@outlook.jp
受付時間 平日7:00~23:00 土日祝7:00~23:00
担当者 小野
URL https://www.seiwalocations.jp

※お問い合わせの際は「ロケステーションを見た」とお伝えください。

施設使用料

スチール
要相談
ムービー
要相談

※最低利用時間4h~となります。

撮影可能時間

24時間 365日

申込期日

3日前まで

備考

8:00前及び20:00以降の利用は使用料20%増しとなります。

画像※サムネイル画像の上にマウスを置くと写真が切り替わります。

河辺駅前ビル|建込み・マンション・1棟貸し・リビング・駐車場・屋上・24時間|東京

河辺駅前ビル

撮影できる場所

外観、駐車場、室内、屋上

撮影ポイント

・天井高2.5m。
・1階、2階を用途に合わせて自由に建て込みできます。
・屋上でのロケも可能。

施設情報・ご利用時のご案内

施設情報

名称 河辺駅前ビル
住所 東京都青梅市
URL https://www.seiwalocations.jp
TEL 090-4705-6757
FAX
MAIL seiwalocations@outlook.jp
アクセス 「練馬IC」から圏央道「青梅IC」経由で約55分
新宿から圏央道「青梅IC」経由で約75分
施設の特徴

建て込み自由な空テナント&3LDKマンション一棟貸ビル。

ご利用時のご案内

協力事項
・ロケハン、メインロケハンは料金は発生いたしません。
・撮影当日は当社スタッフが立会います。
特記事項
・RC造3階建。
・1階:駐車場/2階:テナントフロア52坪/3階:住居フロア3LDK
注意事項
・必ず原状復帰をお願いします。

割引サービスについて

撮影実績

お知らせ

青梅西和ロケーションサービスでは、日本家屋、一軒家、古民家、アパート、オフィス、スナック、コインランドリー、不動産会社、八百屋、お寺、保育園、抜けのある農地、資材置き場など多数の物件を管理しています。物件提供のほかにもコーディネート業務も行っているのでお気軽にご相談下さいませ。弊社はジャパンフィルムコミッション協力企業として活動しています。

間取り・案内図

アクセス

「練馬IC」から圏央道「青梅IC」経由で約55分
新宿から圏央道「青梅IC」経由で約75分

お問い合わせ

090-4705-6757

※お問い合わせの際は「ロケステーションを見た」とお伝え下さい。

FAX
MAIL seiwalocations@outlook.jp
受付時間 平日7:00~23:00 土日祝7:00~23:00
担当者 小野
URL https://www.seiwalocations.jp

関連施設を見る

他の施設を見る

ページトップへ

ページを表示できません。
このサイトは、最新のブラウザでご覧ください。